Zorg vandaag nog voor een actuele plattegrond van jouw pand! 🖥️

Gepubliceerd op 1 juli 2025 om 12:00

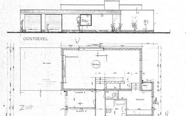
Geen actuele tekeningen van je woning of bedrijfspand? Dat kan problemen opleveren bij verbouwingen, een melding brandveilig gebruik of samenwerkingen met bedrijven die een accurate plattegrond nodig hebben. Vaak zijn archieftekeningen verouderd of ontbreken ze helemaal, zeker na eerdere verbouwingen.

Bij Teken-partners maken we het eenvoudig! Wij meten jouw pand op locatie in en digitaliseren het bestaande archief naar een modern DWG-bestand. Met deze digitale onderlegger heb je een up-to-date plattegrond van je woning, bedrijfspand of woongebouw.

Waarom is dit een must-have?

✅ Toekomstbestendig: Perfect voor onderhoud, verbouwingen, verduurzamingen of VvE-beheer.
✅ Tijdbesparend: Direct de juiste informatie voor aannemers, architecten of instanties.
✅ Veelzijdig: Ideaal voor energielabelberekeningen, vastgoedbeheer of verkooppresentaties.
✅ Kostenbesparend: Voorkom fouten door verouderde of ontbrekende tekeningen.

Met een digitale onderlegger ben je altijd klaar voor nieuwe uitdagingen in je pand!

Neem nu de regie over jouw pand! Neem contact op via info@teken-partners.nl en laat ons jouw pand digitaal in kaart brengen. 🏠

Tekenpartners DigitalePlattegrond Vastgoed Verbouwing VvE Digitalisering